Iglesia de San Andrés
Según
el Patrimonio Histórico de Aragón. Inventario Arquitectónico de Teruel de Félix
Benito Martín: Iglesia Parroquial de San Andrés: Aparece citada en 1196, pero
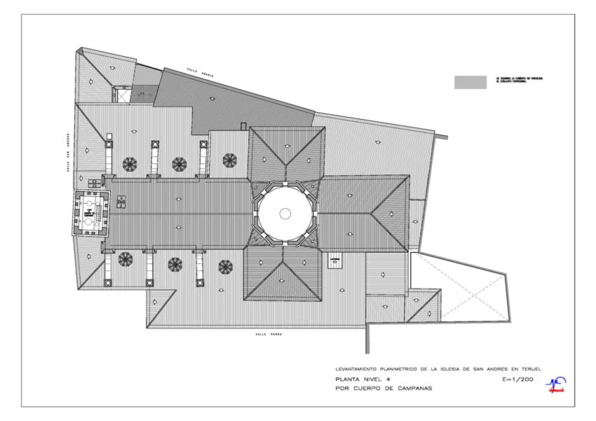
la fábrica actual es del siglo XVII. Es una iglesia de mampostería, de tres
naves, la del lado del evangelio (izquierda) está cubierta con bóvedas vaídas,
algunas con linternas; la nave central, cabecera y tramos del crucero con
bóvedas de arista y cúpula con gran tambor sobre pechinas en el crucero.
Añadiremos de nuestra cosecha tras las exploraciones realizadas que en verdad todas las bóvedas de la nave izquierda, tienen linterna, y como no se hace referencia a la nave derecha diremos que están cubiertas con bóvedas de distinta hechura, según planos que se acompañan. Su traza es manifiestamente irregular con gran esviaje de sus ejes. Forma con los cuerpos adyacentes un conjunto parroquial embutido en un complejo callejero medieval solapándose con otras construcciones ajenas a la parroquia. Es por ello que el levantamiento tuvo una dificultad añadida.
Añadiremos de nuestra cosecha tras las exploraciones realizadas que en verdad todas las bóvedas de la nave izquierda, tienen linterna, y como no se hace referencia a la nave derecha diremos que están cubiertas con bóvedas de distinta hechura, según planos que se acompañan. Su traza es manifiestamente irregular con gran esviaje de sus ejes. Forma con los cuerpos adyacentes un conjunto parroquial embutido en un complejo callejero medieval solapándose con otras construcciones ajenas a la parroquia. Es por ello que el levantamiento tuvo una dificultad añadida.
Autor: Manuel Salvador Redón, Delineante
2008-2011
tiemposweb.com
2008-2011
tiemposweb.com
aun2019








No hay comentarios:
Publicar un comentario